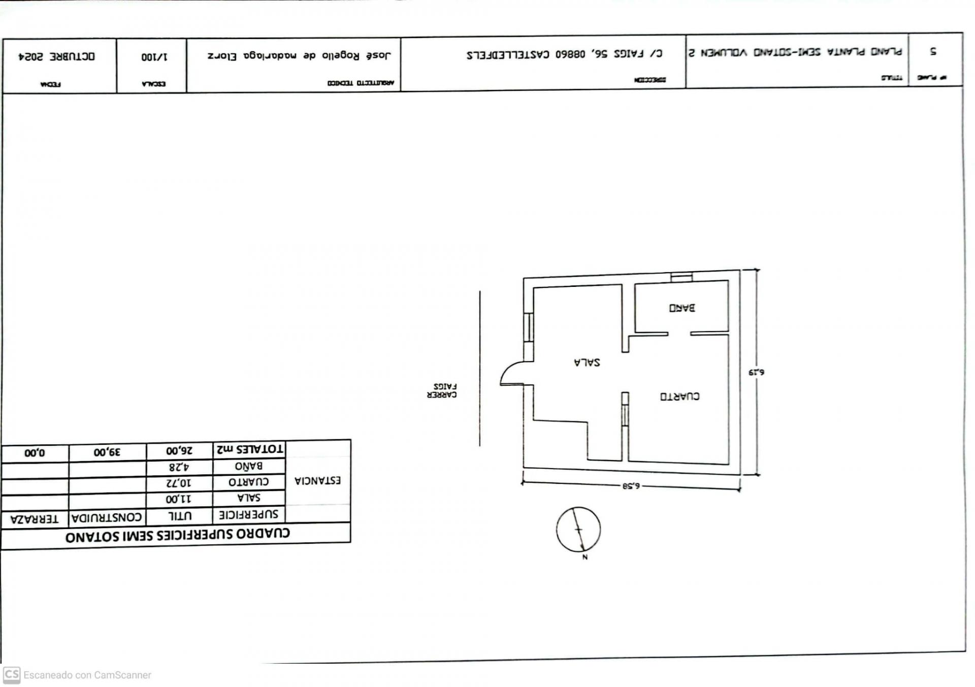
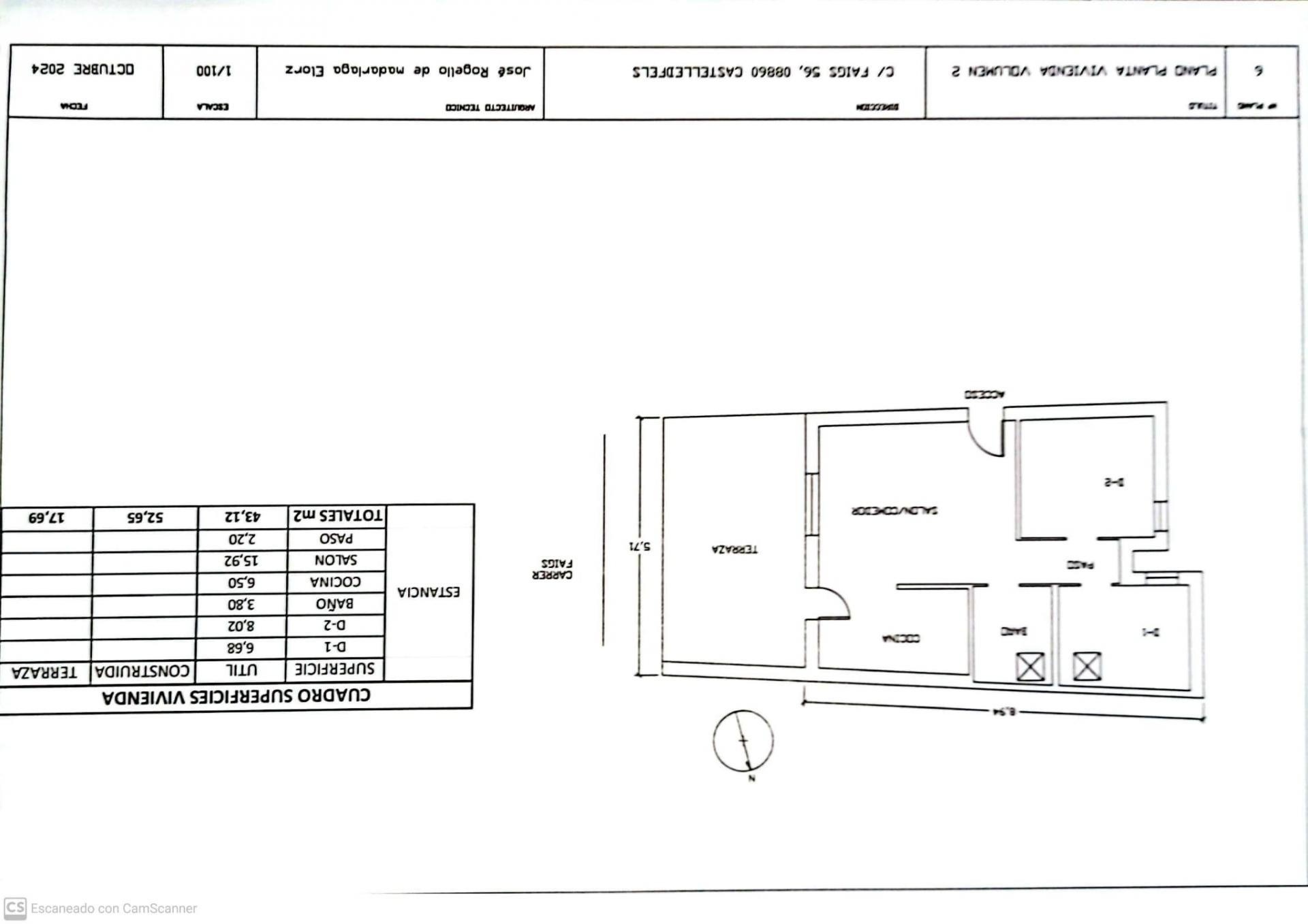
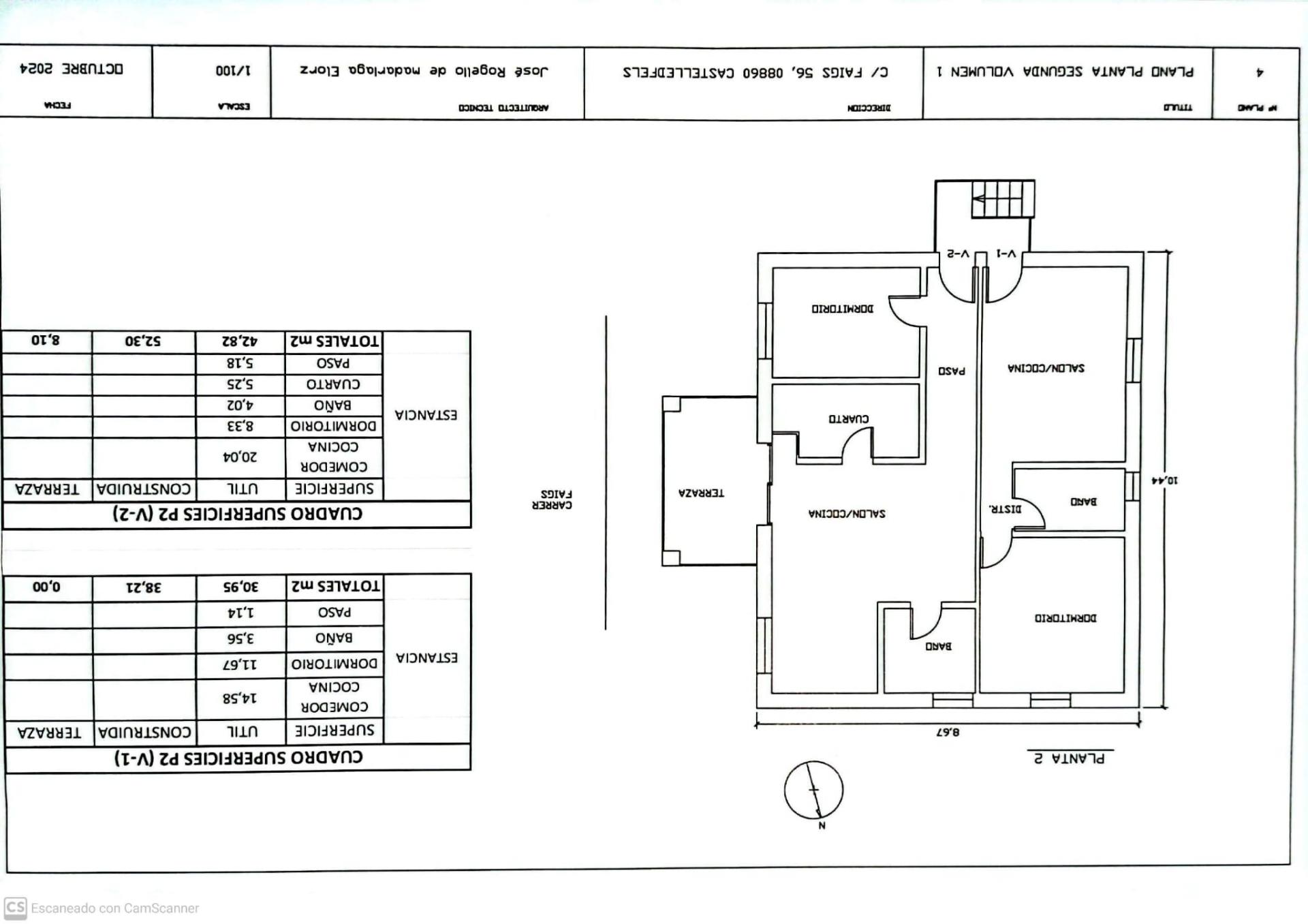
Immeuble de cinq logements sans division horizontale. Can Roca - Castelldefels Opportunité unique d'acquérir un bâtiment entier dans le prestigieux quartier de Can Roca, Castelldefels. Cette propriété de 3 étages est répartie en cinq maisons indépendantes, idéales pour les investisseurs ou les familles à la recherche d'un espace spacieux et polyvalent. Détails du Bâtiment Principal : Distribution des Logements Rez-de-chaussée** : Logement de 82,28 m construits plus un porche. Premier étage** : Maison de 90 m2 plus terrasse. Deuxième étage** : Deux logements, un de 52 m plus terrasse et un autre de 38 m. Annexe au Bâtiment Principal** : Logement supplémentaire de 53 m2 plus terrasse et un demi sous-sol. Finitions et caractéristiques : -Sol en marbre** : Élégance et durabilité dans toutes les maisons. - Climatisation** : Système de chauffage et de climatisation avec pompe à froid et à chaleur dans toutes les unités. - Menuiserie aluminium blanche** : Fenêtres à double vitrage qui assurent une excellente isolation thermique et acoustique. - Terrasse** : Espaces extérieurs dans chaque logement pour profiter de la nature environnante. - Espace commun** : Jardin bien entretenu et espace barbecue, idéal pour réunions et événements. - Garage** : Grand garage de 49 m2 avec capacité pour plusieurs véhicules. - Débarras** : Espace de rangement supplémentaire. État du bâtiment : Le bâtiment est en bon état général, même si certaines zones pourraient bénéficier d'améliorations et de mises à jour pour atteindre leur plein potentiel.
Edificio de cinco Viviendas sin división horizontal . Can Roca - Castelldefels Oportunidad única de adquirir un edificio completo en el prestigioso barrio de Can Roca, Castelldefels. Esta propiedad de 3 plantas está distribuida en cinco viviendas independientes, ideal para inversores o familias que buscan un espacio amplio y versátil. Detalles del Edificio Principal: Distribución de las Viviendas Planta Baja**: Vivienda de 82,28 m construidos más un porche. Primera Planta**: Vivienda de 90 m más terraza. Segunda Planta**: Dos viviendas, una de 52 m más terraza y otra de 38 m . Anexo al Edificio Principal**: Vivienda adicional de 53 m más terraza y un semisótano. Acabados y Características: -Suelo de mármol**: Elegancia y durabilidad en todas las viviendas. - Climatización**: Sistema de calefacción y aire acondicionado con bomba de frío y calor en todas las unidades. - Carpintería de aluminio blanco**: Ventanas con doble cristal que aseguran un excelente aislamiento térmico y acústico. - Terraza**: Espacios al aire libre en cada vivienda para disfrutar del entorno natural. - Zona comunitaria**: Jardín bien cuidado y área de barbacoa, ideal para reuniones y eventos. - Garaje**: Amplio garaje de 49 m útiles con capacidad para varios vehículos. - Trastero**: Espacio adicional para almacenamiento. Estado del Edificio: El edificio se encuentra en buen estado general, aunque algunas áreas podrían beneficiarse de mejoras y actualizaciones para alcanzar su máximo poten
-
A92-100
A
-
B81-91
B
-
C69-80
C
-
D55-68
D
-
E39-54
E
-
F21-38
F
-
G1-20
G
- EN COURS




















































Whatsapp
Facebook
Email
Copier le lien